บ้านสไตล์โมเดิร์น 4 ห้องนอน – ADMIRE รับสร้างบ้าน
home_plan_banner

เดอะ คราวน์ L EVA I The Clound L EVA

โมเดิร์น

บ้านสองชั้น

“The Cloud EVA” ออกแบบในสไตล์ Luxury Modern Minimal เน้นความโปร่งโล่ง เส้นสายเรียบคม และการใช้พื้นที่เปิดกว้าง ให้บรรยากาศสงบหรูเหมือนลอยอยู่เหนือความวุ่นวาย ราวกับ “บ้านที่ลอยอยู่บนก้อนเมฆ” บ้านหลังนี้เหมาะกับครอบครัวใหญ่ที่ต้องการพื้นที่หรูหรา ฟังก์ชันครบ และภาพลักษณ์ระดับพรีเมียม

รายละเอียดบ้าน

6.55

ล้านบาท

ห้องนอน

4

ห้อง

จำนวนห้องรับแขก

2

ห้อง

จำนวนที่จอดรถ

3

คัน

ขนาดที่ดิน

104.50

ตร.ว.

จำนวนห้องน้ำ

3

ห้อง

จำนวนชั้น

2

ชั้น

พื้นที่ใช้สอยตัวบ้าน

327.00

ตร.ม.

กว้าง x ลึก

16.90 x 15.30

เมตร

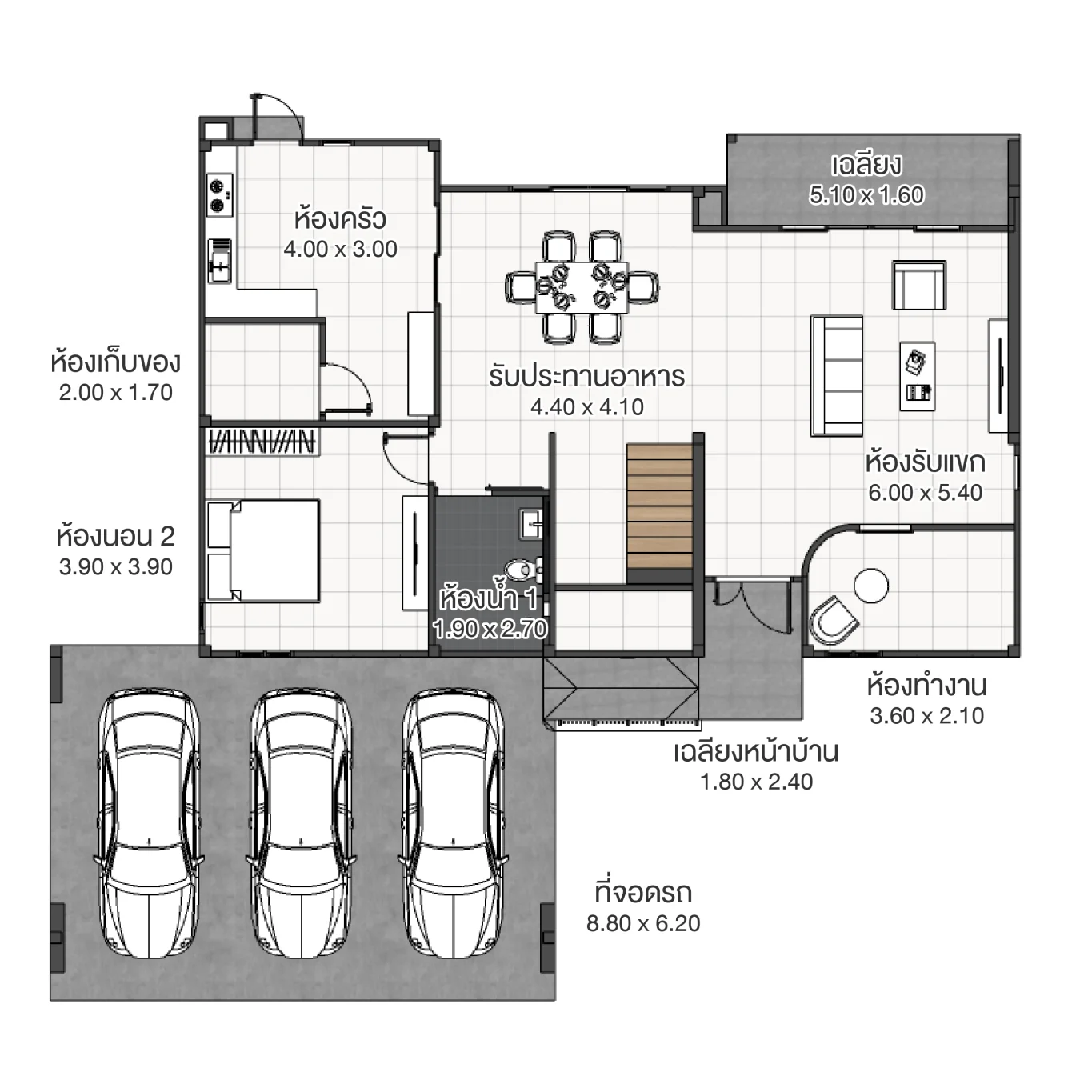
plan-floor-1

แปลนบ้าน ชั้น 1

plan-floor-2

แปลนบ้าน ชั้น 2

รวมภาพออกแบบ

วีดีโอออกแบบบ้าน

ติดต่อแอ็ดไมร

ประเมิณราคาฟรีภายใน 4 ชั่วโมง

แบบบ้านที่คล้ายกัน

คอนเทมโพรารี่

ฉัตรเงิน L | Chat Ngoen L

บ้าน 2 ชั้น สไตล์คอนเทมโพรารี่โมเดิร์น โดดเด่นผ่านการออกแบบด้วยโทนสีขาว เทา น้ำตาล เพิ่มมิติด้วยหลังคาทรงปั้นหยาสีเข้มซ้อนระดับให้บ้านมีเอกลักษณ์ ผนังตกแต่งด้วยหินธรรมชาติที่ให้ความรู้สึกอบอุ่นและสง่างาม จัดเต็มด้วยฟังก์ชันครบครัน ไม่ว่าจะเป็นห้องนั่งเล่น ห้องครัว หรือพื้นที่รับประทานอาหาร ด้านหน้าบ้านมีสระว่ายน้ำสไตล์รีสอร์ท ช่วยเติมเต็มความรู้สึกผ่อนคลาย และสะดวกสบายในทุกมิติ

ขนาดที่ดิน

84 ตร.ว.

ที่ดินกว้าง

14 ม.

4

5

2

261

3.75

ล้านบาท

ไทยประยุกต์

ตามฝัน M | TAMFAN M

ตามฝัน บ้านสองชั้นสไตล์ไทยประยุกต์ ผสมผสานความงามแบบดั้งเดิมเข้ากับดีไซน์ร่วมสมัยได้อย่างลง ตัวบ้านเลือกใช้โทนสีขาวตัดกับหลังคาทรงจั่วสีเทา ชั้นบนออกแบบด้วยงานไม้ระแนงตกแต่งช่วยสร้างเอกลักษณ์ในสไตล์ไทยประยุกต์ พร้อมเพิ่มความโปร่งและช่วยระบายอากาศได้ดี ชั้นล่างเป็นพื้นที่ใช้สำหรับรับแขก พักผ่อน หรือทำกิจกรรมครอบครัว ตอบโจทย์การใช้งานเฉพาะคุณ

ขนาดที่ดิน

96 ตร.ว.

ที่ดินกว้าง

24 ม.

3

2

2

196

3.60

ล้านบาท

คลาสสิค

เอเมอรี | Emery

“Emery” มีรากความหมายถึง ความแข็งแกร่งและหรูหรา บ้านเอเมอรี่จึงถูกออกแบบมาในสไตล์ Classic Contemporary ที่ผสมผสานความสง่างามเหนือกาลเวลาเข้ากับฟังก์ชันการใช้ชีวิตสมัยใหม่ เน้นความสมดุล ความมั่นคง และความโอ่อ่า เหมาะสำหรับครอบครัวที่ต้องการบ้านที่สะท้อนทั้งความสำเร็จและความอบอุ่น

ขนาดที่ดิน

51 ตร.ว.

ที่ดินกว้าง

9 ม.

4

3

2

199

3.50

ล้านบาท

คอนเทมโพรารี่

คาซึโอะ L | Katsuo L

คาซึโอะ บ้านสองชั้นสไตล์คอนเทมโพรารี่ โทนสีหลักของบ้านเลือกใช้สีขาว สีเทา และสีน้ำตาลหลังคาทรงปั้นหยาสีเทาเข้มให้ความรู้สึกแข็งแรง เรียบหรู และทันสมัย ช่องกระจกบานใหญ่ช่วยดึงแสงธรรมชาติเข้าสู่ภายใน ทำให้บรรยากาศโปร่งโล่ง สบาย เหมาะสำหรับครอบครัวที่ต้องการความลงตัวทั้งในด้านฟังก์ชันการใช้งานและดีไซน์ที่ทันสมัย

ขนาดที่ดิน

55 ตร.ว.

ที่ดินกว้าง

12 ม.

4

3

2

252

4.10

ล้านบาท

เจแปน

อาเกมิ | Akemi

“อาเกมิ” คือบ้านสไตล์ Minimal Japanese Modern ที่นำแรงบันดาลใจจากความเรียบง่ายของญี่ปุ่นมาปรับให้เข้ากับการอยู่อาศัยในปัจจุบัน ดีไซน์สะอาดตา โปร่งโล่ง และเชื่อมต่อกับสวนธรรมชาติรอบด้าน ให้ความรู้สึกสงบ อบอุ่น และผ่อนคลาย เหมาะกับครอบครัวที่ต้องการบ้านเรียบง่ายแต่ใช้งานได้จริง

ขนาดที่ดิน

60 ตร.ว.

ที่ดินกว้าง

14 ม.

3

2

1

120

2.10

ล้านบาท

Untitled

ติดตาม

facebook
youtube
Line2
tiktok

แบบสำรวจ

  • แบบสำรวจความต้องการ

  • ร้องเรียนบริการ

  • ประเมินความพึงพอใจ

หจก.แอ็ดไมร คอนสตรัคชั่น

306/24-25 มิตรภาพซอย 4 ต.ในเมือง
อ.เมืองนครราชสีมา จ.นครราชสีมา
30000

เวลาทำการ : จันทร์ - เสาร์
เวลา 08.00 - 17.00 น.

© สงวนลิขสิทธิ์ หจก. แอ็ดไมร คอนสตรัคชั่น พ.ศ. 2567